欢迎访问临泽县人民政府门户网站
网站支持IPv6
|
设为首页
|
加入收藏
|
繁体
简体
|
无障碍阅读
|
适老化模式
|
个人中心
首页
党政动态
走进临泽
政府信息公开
办事服务
政民互动
临泽招商
智能小掖
甘快办
收藏
订阅
温馨提示:
收藏、订阅需先登录,系统检测到您未登录,请点击“确认”将为您跳转到登录页面。
确认
政务公开
首页
>
政府信息公开
>
法定主动公开内容
>
基层政务公开
>
城乡规划领域
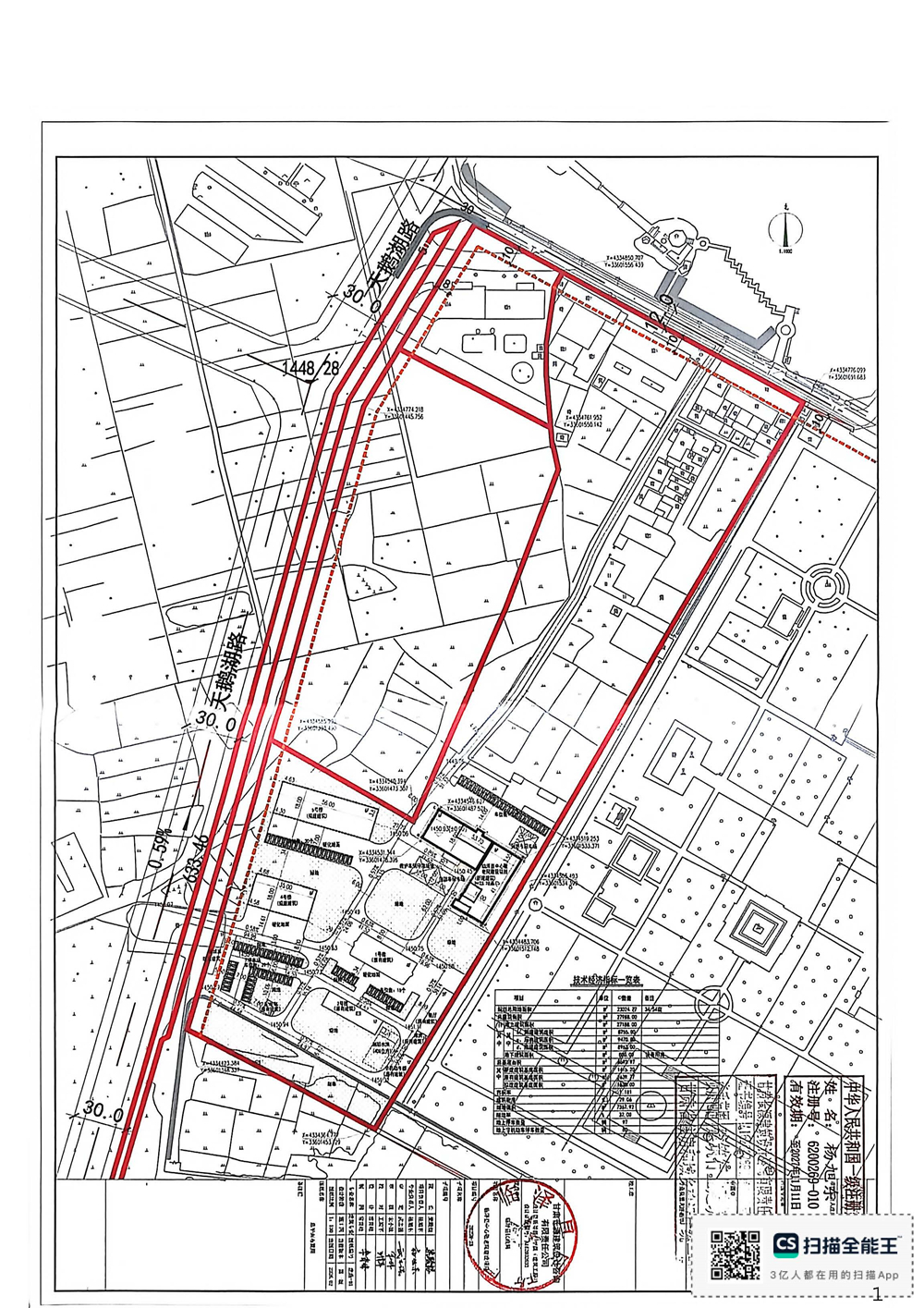
临泽县中心敬老院建设项目《建设工程规划许可证》公示
索引号
620723003/2026-00048
发文字号
关键词
发布机构
临泽县自然资源局
公开形式
主动公开
责任部门
临泽县自然资源局
生成日期
2026-02-11
是否有效
是
扫一扫在手机打开当前页
甘肃临泽
文明临泽
枣乡临泽
返回顶部